
|
上海川滬閥門有限公司專業生産的CS45自由半浮球式蒸汽疏水閥是機械型疏水閥中工作性能可靠的疏水閥之一。它的内部結構隻有一個半浮球式的球桶爲活動部件,開口朝下,半浮球式的球桶外圓經過精細研磨,整個球面都可爲密封面。使用壽命很長,能抗水錘,沒有易損件,無故障,經久耐用,無蒸汽洩漏,節能效果好。自由半浮球式蒸汽疏水閥用於(yú)蒸汽加熱設備(bèi),蒸汽管網凝結水回收系統。 工作原理: 自由半浮球式蒸汽疏水閥隻有一個半浮球式的球桶爲活動部件,開口朝下,球桶即是啓閉(bì)件,又是密封件。當裝置剛啓動時,管道内的空氣和低溫凝結水經過發射管進入疏水閥内,閥内的雙金屬片排空元件把球桶彈開,閥門開啓,空氣和低溫凝結水迅速排出。當蒸汽進入球桶内,球桶産生向上浮力,同時閥内的溫度升高,雙金屬片排空元件收縮,球捅漂向閥口,閥門關閉(bì)。當球桶内的蒸汽變成凝結水,球桶失去浮力往下沉,閥門開啓,凝結水迅速排出。當蒸汽再進入球桶之内,閥門再關閉(bì),間斷和連續工作。由於(yú)閥座處於(yú)水封隔離,水汽分開,工作時無蒸汽洩漏。 |
![]() |
CS45自由半浮球式疏水閥(fá) |
| 型号 | PN | 工作壓力/MPa | 适用溫度/℃ | 适用介質 |
| CS15H-16C | 16 | 1.6 | ≤350 | 蒸汽、水 |
| CS45H-16C | 16 | 1.6 | ≤350 | 蒸汽、水 |
![]() |
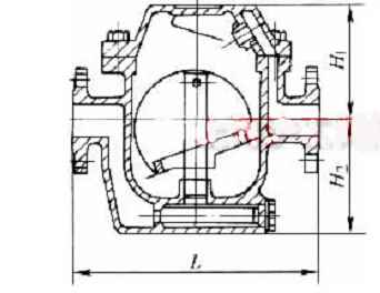
CS45自由半浮球式疏水閥(fá)外形尺寸圖 |
| 型号 | DN | L | H1 | H2 | W |
| CS15H-16C | 15 | 170 | 75 | 93 | 120 |
| 20 | 170 | 75 | 93 | 120 | |
| 25 | 170 | 75 | 93 | 120 | |
| 32 | 210 | 95 | 155 | 160 | |
| 40 | 210 | 95 | 155 | 160 | |
| 50 | 210 | 95 | 155 | 160 | |
| CS45H-16C | 15 | 230 | 75 | 93 | 120 |
| 20 | 230 | 75 | 93 | 120 | |
| 25 | 230 | 75 | 93 | 120 | |
| 32 | 270 | 95 | 155 | 160 | |
| 40 | 270 | 95 | 155 | 160 | |
| 50 | 270 | 95 | 155 | 160 | |
| CS45H-16(AA) | 65 | 380 | 177 | 172 | 290 |
| 80 | 380 | 177 | 172 | 290 | |
| 100 | 380 | 177 | 172 | 290 |
注:表中尺寸爲不帶标準附件數據。另由於(yú)産品改進技術創新參數可能有一定變(biàn)化,請咨詢公司技術部門索取新數據。
|
|