
|
上海川滬閥門有限公司專業生産的CS41H自由浮球式蒸汽疏水閥,用於(yú)蒸汽加熱設備(bèi)、蒸汽管網和凝結水回收系統,它能迅速、自動、連續地排除凝結水,有效地阻止蒸汽洩漏。 工作原理:自由浮球式蒸汽疏水閥利用浮力原理,浮球根據凝結水量的多少,随水位的變化而作升降,自動調節閥座孔的開度,連續排放凝結水,當凝結水停止進入時,浮球降的底部,回到關閉(bì)位置,排水停止,由於(yú)排水閥座孔總是在凝結水位以下,形成水封、水、氣自然分離,達到無蒸汽洩漏。 |
![]() |
CS41自由浮球式疏水閥 |
| CS41H-16、CS41H-16C、CS41-25、CS41-40 型自由浮球式蒸汽疏水閥零部件材料 | |
| 型号 | 閥體材料 |
| CS41H-16 | 鑄鐵 |
| CS41H-16C | 碳鋼 |
| CS41H-25 | 碳鋼 |
| CS41H-40 | 碳鋼 |
![]() |
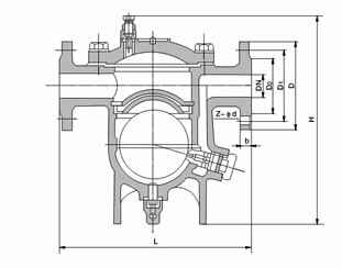
CS41自由浮球式疏水閥(fá)外形尺寸圖(tú) |
| CS41H-16、CS41H-16(Ⅱ)型自由浮球式蒸汽疏水閥主要外形及結構尺寸(mm) | |||||||||||||||
| CS41H-16 | CS41H-16(Ⅱ) | ||||||||||||||
| DN | 15 | 20 | DN | 25 | |||||||||||
| D | 170 | 200 | L | 310 | |||||||||||
| H | 127 | 142 | H | 240 | |||||||||||
| h | 80 | 90 | h | 178 | |||||||||||
| 重量/kg | 3.5 | 4.5 | 重量/kg | 15 | |||||||||||
| CS41H-16C CS41H-40(Ⅰ)、CS41H-16C CS41H-40(Ⅱ)型自由浮球式蒸汽疏水閥主要外形及結構尺寸(mm) | |||||||||||||||
| CS41H-16C CS41H-40(Ⅰ) | CS41H-16C CS41H-40(Ⅱ) | ||||||||||||||
| DN | 15 | 20 | 25 | DN | 25 | 40 | 50 | ||||||||
| L | 230 | 230 | 230 | D | 320 | 320 | 320 | ||||||||
| H | 220 | 220 | 220 | H | 295 | 295 | 295 | ||||||||
| h | 150 | 150 | 150 | h | 210 | 210 | 210 | ||||||||
| 重量/kg | 10 | 10.5 | 11 | 重量/kg | 24 | 25 | 26 | ||||||||
| CS41H-16C CS41H-40(Ⅲ)、CS41H-16C CS41H-40(Ⅳ)型自由浮球式蒸汽疏水閥主要外形及結構尺寸(mm) | |||||||||||||||
| CS41H-16C CS41H-40(Ⅲ) | CS41H-16C CS41H-40(Ⅳ) | ||||||||||||||
| DN | 50 | 65 | 80 | DN | 80 | 100 | |||||||||
| L | 430 | 430 | 430 | D | 580 | 580 | |||||||||
| H | 410 | 410 | 410 | H | 540 | 540 | |||||||||
| h | 290 | 290 | 290 | h | 390 | 390 | |||||||||
| 重量/kg | 80 | 83 | 86 | 重量/kg | 130 | 137 | |||||||||
注:表中尺寸爲不帶标準附件數據。另由於(yú)産品改進技術創新參數可能有一定變(biàn)化,請咨詢公司技術部門索取新數據。
|
|