
|
上海川滬閥門有限公司專業生産(chǎn)的Q41F軟密封浮動球閥,具有如下特點(diǎn): 1、先進的閥座:聚多年球閥制造經驗而設計的閥座,確保閥門密封,磨擦系數低,操作力矩小、多種閥座材料、适應範圍廣。 |
![]() |
Q41F軟密封球閥 |
| 設計依據 | 國标系列 | 美标系列 | |
| 設計标準 | GB/T12237 | AP16D | ANSI B16.34 |
| 法蘭連接結構長度 | GB/T12221 | AP16D | ANSI B16.10 |
| 結構長度(焊接) | GB/T15188.1 | AP16D | ANSI B16.10 |
| 連接法蘭 | GB/T9113 JB/T79 Hg20592 |
ANSI B16.5、B16.47 | |
| 對焊端 | GB/T12224 | ANSI B16.25 | |
| 試驗和檢驗 | GB/T9092 | AP16D | AP1598 |
| 材料 标準 零件名稱 |
材料牌号 | 序 号 |
材料 标準 零件名稱 |
材料牌号 | ||||||
| 碳鋼 | 不鏽鋼 | 碳鋼 | 不鏽鋼 | |||||||
| GB | ASTM | GB | ASTM | GB | ASTM | GB | ASTM | |||
| 閥體 | WCB | A216-WCB | ZG1Cr18Ni9Ti ZG1Cr18Ni12Mo2Ti |
CF8/CF8M/ CF3/CF3M |
10 | 閥座密封圈 | 石墨 | |||
| 閥蓋 | WCB | A216-WCB | ZG1Cr18Ni9Ti ZG1Cr18Ni12Mo2Ti |
CF8/CF8M/ CF3/CF3M |
11 | 閥杆 | 2Cr13 | A276-410 | 1Cr18Ni9Ti 1Cr18Ni12Mo2Ti |
F304/F316 /F304L/F316L |
| 雙頭螺柱 | 35CrMoA | A193-B7 | 1Cr17Ni2 | A193-B8M | 12 | 止推軸承 | 金屬夾PTFE | |||
| 螺母 | 45 | A194-2H | 0Cr18Ni | A194-8M | 13 | 閥杆填料 | 石墨 | |||
| 墊圈 | 金屬夾石墨 | 14 | 填料壓環 | 2Cr13 | A276-410 | 1Cr18Ni9Ti 1Cr18Ni12Mo2Ti |
F304/F316 /F304L/F316L |
|||
| 球體 | 2Cr13滲氮 | A276-410滲氮 | 1Cr18Ni9Ti 1Cr18Ni12Mo2Ti滲氮 |
F304/F316 /F304L/F316L 滲氮 |
15 | 填料壓蓋 | WCB | A216-WCB | ZG1Cr18Ni9Ti ZG1Cr18Ni12Mo2Ti |
CF8/CF8M/ CF3/CF3M |
| 閥座 | 2Cr13滲氮 | A276-410滲氮 | 1Cr18Ni9Ti 1Cr18Ni12Mo2Ti滲氮 |
F304/F316 /F304L/F316L 滲氮 |
16 | 螺釘 | 35CrMoA | A193-B7 | 1Cr17Ni2 | A193-B8M |
| 閥座支承圈 | 2Cr13 | A276-410 | 1Cr18Ni9Ti 1Cr18Ni12Mo2Ti |
F304/F316 /F304L/F316L |
17 | 定位闆 | 2Cr13 | A276-410 | 1Cr18Ni9Ti | 304 |
| 閥座彈簧 | 17-7PH | 17-7PH | 17-7PH | 17-7PH | ||||||
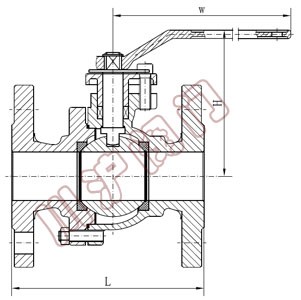
![]() |
Q41F軟(ruǎn)密封球閥(fá) 外形尺寸圖 |
| 公稱通徑DN | 15 | 20 | 25 | 32 | 40 | 50 | 65 | 80 | 100 | 125 | 150 | 200 |
| L | 130 | 140 | 150 | 165 | 180 | 200 | 220 | 250 | 280 | 320 | 360 | 400 |
| H | 59 | 63 | 75 | 105 | 95 | 107 | 142 | 152 | 178 | 252 | 272 | 342 |
| W | 130 | 130 | 160 | 180 | 230 | 230 | 400 | 400 | 650 | 1050 | 1050 | 1410 |
| Wt(㎏) | 2.5 | 3 | 5 | 6 | 7 | 10 | 15 | 19 | 33 | 58 | 93 | 160 |
| 公稱通徑DN | 15 | 20 | 25 | 32 | 40 | 50 | 65 | 80 | 100 | 125 | 150 | 200 |
| L | 130 | 140 | 150 | 165 | 180 | 200 | 220 | 250 | 280 | 320 | 360 | 400 |
| H | 59 | 63 | 75 | 105 | 95 | 107 | 142 | 152 | 178 | 252 | 272 | 342 |
| W | 130 | 130 | 160 | 180 | 230 | 230 | 400 | 400 | 650 | 1050 | 1050 | 1410 |
| Wt(㎏) | 2.5 | 3 | 5 | 6.5 | 9 | 12 | 20 | 25 | 44 | 75 | 105 | 200 |
| 公稱通徑DN | 15 | 20 | 25 | 32 | 40 | 50 | 65 | 80 | 100 | 125 | 150 | 200 |
| L | 130 | 140 | 150 | 180 | 200 | 220 | 250 | 280 | 320 | 400 | 400 | 400 |
| H | 59 | 63 | 75 | 85 | 95 | 107 | 142 | 152 | 178 | 252 | 272 | 342 |
| W | 130 | 130 | 160 | 230 | 230 | 400 | 400 | 700 | 1100 | 1100 | 1500 | 1500 |
| Wt(㎏) | 3 | 4 | 5 | 7 | 9 | 12 | 18 | 28 | 46 | 75 | 106 | 190 |
| 公稱通徑DN | 15 | 20 | 25 | 32 | 40 | 50 | 65 | 80 | 100 | 125 | 150 | 200 |
| L | 165 | 190 | 216 | 229 | 241 | 292 | 330 | 356 | 432 | 508 | 559 | 660 |
| H | 59 | 63 | 75 | 97 | 107 | 142 | 152 | 178 | 252 | 272 | 305 | 398 |
| W | 130 | 130 | 160 | 230 | 230 | 400 | 400 | 700 | 1100 | 1100 | 1500 | 1800 |
| Wt(㎏) | 6.5 | 7 | 8 | 12 | 14 | 18 | 28 | 40 | 65 | 98 | 140 | 250 |
| 公稱通徑DN | 15 | 20 | 25 | 32 | 40 | 50 | 65 | 80 | 100 | 125 | 150 | 200 |
| L | 165 | 190 | 216 | 229 | 241 | 292 | 330 | 356 | 432 | 508 | 559 | 660 |
| H | 59 | 63 | 75 | 97 | 107 | 142 | 152 | 178 | 252 | 272 | 305 | 398 |
| W | 130 | 130 | 160 | 230 | 230 | 400 | 400 | 700 | 1100 | 1100 | 1500 | 1800 |
| Wt(㎏) | 6.5 | 7 | 10 | 15 | 18 | 25 | 32 | 46 | 75 |
|
|