
|
上海川滬閥門有限公司專業制造的J41Y法蘭式鍛鋼截止閥是一種常用的高溫高壓截斷閥,主要用來接通或截斷管路中的介質,一般不用於(yú)調節流量。J41Y鍛鋼截止閥适用的壓力、溫度範圍很大,本閥适用於(yú)小口徑的管道,密封面不易磨損、擦傷,密封性能好,啓閉時閥瓣行程小,啓閉時間較短,閥門高度較小。鍛鋼截止閥有三種閥蓋設計形式。第一種是螺栓式閥蓋,按這種設計形式設計的閥門,其閥體與閥蓋用螺栓螺母連接,纏繞式墊片 (316夾柔性石墨制造)密封。客戶有特殊要求時也可採(cǎi)用金屬環連接。第二種設計形式是焊接式閥蓋,按這種設計形式的閥門,其閥體與閥蓋用螺紋連接,全焊密封。客戶有特殊要求時也可採(cǎi)用全焊逶連接。第三種是壓力自緊式閥蓋,按這種設計形式設計的閥門,其閥體與閥蓋用螺紋連接,内壓自密封環密封。 |
![]() |
J41Y高壓法蘭鍛(duàn)鋼截止閥(fá) |
| 序号 | 零件名稱 | CS to ASTM | AStoASTM | SS to ASTM | |
| TypeAl05 | Type f22 | Type F304(L) | Type F316(L) | ||
| l | 閥體 | A105 | A182 F22 | A182 F304(L) | A182 F316(L) |
| 2 | 閥瓣 | A276 42() | A276 F304 | A276 F304(L) | A276 F316(L) |
| 3 | 閥杆 | A182 F6 | A182 F304 | A182 F304(L) | A182 F316(L) |
| 4 | 墊片 | 3l6夾柔性石墨 | 316夾SS+PTFE | ||
| 5 | 閥蓋 Bonnet | A105 | A276 304 | A276 304(L) | A276 316(L) |
| 6 | 閥蓋螺栓 | A193 B7 | A193 B16 | A193 B8 | A193 B8M |
| 7 | 圓柱銷 | A276 420 | A276 304 | ||
| 8 | 填料壓套 Gland | A276410 | A182 F304(L) | Al 82 F316(L) | |
| q | 活節螺栓 | A193 B7 | A193 B16 | A193 B8 | A193 B8M |
| 10 | 填料壓闆 | A216 WCB | A351 CF8 | ||
| 11 | 螺母 | A194 211 | A194 4 | A194 8 | A194 8M |
| 12 | 閥杆螺母 | A276 410 | |||
| 13 | 螺母 | A194 2H | A194 4 | A194 8 | A194 8M |
| 14 | 銘牌 | SS | |||
| 15 | 手輪 | A197 | |||
| 16 | 填料 | 柔性石墨 | PTFE | ||
| 适用介質 | 水、蒸汽、油品等 | 水、蒸汽、油品等 | 硝酸、醋酸等 | ||
| 适用溫度 | -29℃~425℃ | -29℃~550℃ | -29℃~1扪℃ | ||
![]() |
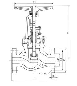
J41Y高壓法蘭鍛(duàn)鋼截止閥(fá) 外形尺寸圖 |
800Lb
| NPS | 縮徑 | 3/8 | 1/2 | 3/4 | 1 | 1 1/4 | 1 1/2 | 2 | / | |
| 全徑 | / | 3/8 | 1/2 | 3/4 | 1 | 1 1/4 | 1 1/2 | 2 | ||
| L | 79 | 79 | 92 | 11 1 | 120 | 152 | l72 | 200 | ||
| H(開OPEN) | l66 | 1 66 | 171 | 207 | 240 | 258 | 330 | 355 | ||
| W | 100 | 1 00 | l 00 | 1 25 | 160 | 160 | 180 | 200 | ||
| 重量 | 螺栓式 | 1 9 | 1.9 | 2.1 | 3.5 | 6.0 | 7.5 | 11.4 | l4 6 | |
| 焊接式 | 1 7 | l 7 | 1 9 | 3 3 | 5 2 | 6 8 | l0.6 | 13 8 | ||
900-1500Lb
| NPS | 縮徑 | 3/8 | 1/2 | 3/4 | 1 | 1 1/4 | 1 1/2 | 2 | / | |
| 全徑 | / | 3/8 | 1/2 | 3/4 | 1 | 1 1/4 | 1 1/2 | 2 | ||
| L | 92 | 111 | 111 | 120 | 152 | l72 | 200 | 220 | ||
| H(開OPEN) | 171 | 207 | 207 | 240 | 258 | 330 | 355 | 370 | ||
| W | 100 | 1 25 | l 25 | 160 | 160 | 180 | 200 | 240 | ||
| 重量 | 螺栓式 | 2.2 | 3.7 | 3 6 | 6.8 | 7.6 | 11.6 | 15.0 | 21.9 | |
| 焊接式 | 2.O | 3.4 | 3 3 | 6.O | 5.6 | 10.3 | 14.2 | 18.0 | ||
|
|