
上海川滬公司生産的GUQ氣動高真空球閥是通過電磁換向閥改變(biàn)氣路方向,控制執行氣缸來驅動球閥,達到接通或切斷真空(壓力)系統管道路中的介質流。氣動高真空球閥應用於(yú)真空、乳制品、酒業、生物工程、食品、制藥、飲料、化妝品及化工領域。可選配反饋信号裝置及電氣閥門定位器。GUQ氣動高真空球閥是在1.3×10-7~6×105Pa的真空系統中用來開啓或隔斷氣流的氣動閥門,氣動高真空球閥廣泛适用各類氣體,液體等正、負壓力管道系統,符合GMP标準。 |
![]() |
氣動真空球閥 |
1、密封結構設計獨特,漏率可達到<1×10-10Pa.M3/S,改變瞭球閥不能滿足高真空、超高真空的現狀;
2、開關扭矩小,配置氣動執行器小,工作穩定、可靠;
3、結構緊湊,重量輕,外形簡潔、美觀;
4、該閥既能适用高真空,又能适用一定的正壓力下 使用;
5、由於球閥全通導,又能達到超高真空要求,所以 也能适用於加速器真空系統。
| 洩漏率 | 1.3×10-9Pa.M3/S; |
|---|---|
| 壓力範圍 | 5×10-7Pa~0.6Mpa |
| 工作溫度 | -30℃~+232℃ |
| 氣源壓力 | .4~0.6 Mpa |
| 工作介質 | 水、蒸氣、酸、堿 |
| 安裝位置 | 任意 |
| 使用壽命 | ≥20000次 |
| 執行器型号 | GT、AT、AR、AW系列單雙作用氣動執行器 |
|---|---|
| 供氣壓力 | 0.4~0.7MPa |
| 氣源接口 | G1/4"、G1/8"、G3/8"、G1/2" |
| 環境溫度 | -30~+70℃ |
| 作用形式 | 單作用執行機構:氣關式(B)--失氣時閥位開(FO);氣開式(K)--失氣時閥位關(FC) 雙作用執行機構:氣關式(B)--失氣時閥位保持(FL);氣開式(K)-- 失氣時閥位保持(FL) |
| 可配附件 | 定位器、電磁閥、空氣過濾減壓器、保位閥、行程開關、閥位傳送器、手輪機構等 |
採用新型氣動執行器,有雙作用式和單作用式(彈簧複位),齒輪齒條傳動,安全可靠;大口徑閥門採用系列AW型氣動執行器拔叉式傳動,結構合理,輸出力大,有雙作用式和單作用式。
1、齒輪式雙活塞,輸出力矩大,體積小。
2、氣缸選用鋁金材料,重量輕、外形美觀。
3、可在頂部、底部安裝手動操作機構。
4、齒條式連接可調節開啓角度、額定流量。
5、執行器可選帶電訊号反饋指示及附件以實現自動化操作。
6、IS05211标準連接爲産品的安裝更換提供瞭方便。
7、兩端調的節螺釘可使标準産品在0°和90°有±4°的可調範圍。確保與内螺紋氣動球閥的同步精度。
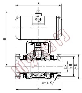
快卸法蘭(lán)連(lián)接尺寸 (标準:ISO-2852)
![]() |
| 公稱型号 | DN | A | B | L | H |
|---|---|---|---|---|---|
| GUQ-16R | 16 | 34 | 27.5 | 75 | 100 |
| GUQ-20R | 20 | 50.5 | 43.5 | 90 | 110 |
| GUQ-25R | 25 | 50.5 | 43.5 | 100 | 125 |
| GUQ-32R | 32 | 50.5 | 43.5 | 110 | 155 |
| GUQ-40R | 40 | 50.5 | 43.5 | 120 | 170 |
| GUQ-50R | 50 | 64 | 56.5 | 135 | 210 |
| GUQ-65R | 65 | 77.5 | 70.5 | 150 | 260 |
| GUQ-80R | 80 | 91 | 83.5 | 200 | 320 |
| GUQ-100R | 100 | 119 | 110 | 250 | 400 |
注:以上參數均以國标PN1.6MPa爲準,其他壓力等級請咨詢公司技術部,表中尺寸爲不帶标準附件數據,另由於(yú)産品改進技術創新參數可能有一定變(biàn)化,請咨詢公司技術部門索取新數據。
|
|