
上海川滬閥門有限公司研發、生産的氣動薄膜調節蝶閥,是由氣動薄膜執行機構和低負載蝶閥組成。氣動薄膜調節蝶閥可外配氣動閥門定位器,輸入控制信号(4-20mADC或1-5VDC)氣源即可控制運轉閥,操作極其簡單。氣動薄膜調節蝶閥閥體採用金屬但偏心結構或鋼闆焊接結構,按閥體結構分爲開放型和後座型兩種型式。開放型爲無閥座結構,因此洩漏量大,後座型是在開放型結構的基礎上增加瞭閥座,因而其洩漏量較開放型有較大改善。氣動薄膜調節蝶閥主要适用於對低壓介質的流量、壓力控制。該氣動蝶閥具有結構簡單、操作方便、重量輕等特點。 |
|
氣動薄膜調節蝶閥 |
1、閥體
| 閥體形式 |
直通鑄造蝶閥 |
| 公稱通徑 |
DN50~1000mm |
| 公稱壓力 |
PN1.0、1.6 MPa |
| 法蘭标準 |
JIS B220、JB/T79、ANSI B16.5-1981、GB/T9113、HG20594-97、HG20618-97等 |
| 連接形式 |
法蘭式、對夾式 |
| 閥蓋形式 |
一體式 |
| 壓蓋型式 |
壓蓋壓緊式 |
| 密封填料 |
V型聚四氟乙烯填料、柔性石墨填料 |
2、閥内件
| 閥闆形式 |
垂直闆式(蝶形) |
| 流量特性 |
調節型(近似等百分比)、開關型(線性) |
2、執行機構
| 執行器型号 |
GT系列、SR系列、AT系列、AW系列單雙作用氣動執行器 |
| 供氣壓力 |
400~700KPa |
| 氣源接口 |
G1/4"、G1/8"、G3/8"、G1/2" |
| 環境溫度 |
-30~+70℃ |
| 作用形式 |
單作用執行機構:氣關式(B)--失氣時閥位開(FO);氣開式(K)--失氣時閥位關(FC) 雙作用執行機構:氣關式(B)--失氣時閥位保持(FL);氣開式(K)-- 失氣時閥位保持(FL) |
| 可配附件 |
定位器、電磁閥、空氣過濾減壓器、保位閥、行程開關、閥位傳送器、手輪機構等 |
| 公稱通徑 |
DN(mm) |
50~1000 |
| 公稱壓力 |
PN(MPa) |
0.6 |
1.0 |
1.6 |
| 試驗壓力 |
強度試驗 |
0.9 |
1.5 |
2.4 |
| 密封試驗 |
0.66 |
1.1 |
1.76 |
| 氣密封試驗 |
0.6 |
0.6 |
0.6 |
| 适用介質 |
空氣、水、污水、蒸氣、煤氣、油品等。 |
| 驅動形式 |
氣動傳動 |
| 零件名稱 |
主要材料 |
| 閥體 |
球墨鑄鋼、鑄鋼、合金鋼、不鏽鋼 |
| 蝶闆 |
灰鑄鐵、球墨鑄鋼、鑄鋼、不鏽鋼及特殊材料 |
| 密封圈 |
各種橡膠、聚四氟 |
| 閥杆 |
2Cr13、不鏽鋼 |
| 填料 |
O型圈、柔性石墨O |
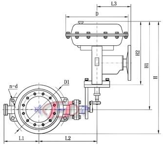
| 公稱通徑 |
D1 |
L1 |
L2 |
n-d |
H |
H1 |
H2 |
D |
L3 |
法蘭端面距 |
| 50 |
110 |
92 |
200 |
4-14 |
637 |
582 |
382 |
280 |
278 |
60 |
| 80 |
150 |
92 |
200 |
4-18 |
644 |
582 |
382 |
280 |
278 |
| 100 |
175 |
102 |
210 |
654 |
280 |
278 |
| 125 |
200 |
117 |
234 |
8-18 |
723 |
636 |
436 |
325 |
278 |
| 150 |
225 |
130 |
247 |
736 |
325 |
278 |
| 200 |
280 |
172 |
287 |
763 |
325 |
278 |
70 |
| 250 |
335 |
197 |
327 |
12-18 |
1008 |
853 |
615 |
410 |
376 |
| 300 |
395 |
227 |
351 |
12-23 |
1034 |
410 |
376 |
80 |
| 350 |
445 |
252 |
376 |
1059 |
410 |
376 |
| 400 |
495 |
296 |
432 |
16-23 |
1238 |
1007 |
720 |
495 |
376 |
100 |
| 450 |
550 |
321 |
459 |
1266 |
495 |
376 |
| 500 |
600 |
346 |
484 |
1291 |
495 |
376 |
| 600 |
705 |
480 |
565 |
20-25 |
1486 |
1109 |
796 |
|
180 |
150 |
| 700 |
810 |
530 |
615 |
24-25 |
1539 |
|
180 |
| 800 |
920 |
595 |
675 |
24-30 |
1596 |
|
180 |
200 |
| 900 |
1020 |
685 |
770 |
24-30 |
1661 |
1124 |
|
180 |
| 1000 |
1120 |
735 |
810 |
28-30 |
1711 |
1124 |
|
180 |
200 |
注:表中尺寸爲不帶标準附件數據。另由於(yú)産品改進技術創新參數可能有一定變(biàn)化,請咨詢公司技術部門索取新數據。