
|
上海川滬閥門有限公司專業生産的H41F46襯氟止回閥是一種依靠介質本身的流動而自動啓閉(bì)閥瓣用來阻止介質逆向流動的自動防腐閥門,又稱爲逆止閥和單向閥。H41F46襯氟止回閥适用在-60℃~150℃的各種濃度的王水、硫酸、鹽酸、氫氟酸和各種有機酸、強酸、強氧化劑,FEP還适用於(yú)各種濃度的強堿有機溶劑以及其它腐蝕性氣體、液體介質的管路上使用。 |
![]() |
H41F46襯氟止回閥 |
| 序号 | 零件名稱 | 灰鑄鐵 | 鑄鋼 | 不鏽耐酸鑄鋼 | 超低碳不鏽耐酸鑄鋼 | ||
| Z | C | P | R | PL | RL | ||
| 1 | 閥體/閥蓋 | HT250 | WCB | CF8 | CF8M | CF3 | CF3M |
| 2 | 閥瓣/閥杆 | 35 | 1Cr13 | 1Cr18Ni9 | 1Cr18Ni12Mo2Ti | 00Cr18Ni10 | 00Cr17Ni14Mo2 |
| 3 | 襯裏/閥座 | PCTEF(F3),FEP(F46),PFA(可溶F4),PP,PO | |||||
| 4 | 緊固螺栓 | WCB | 1Cr17Ni2 | 1Cr18Ni9Ti | |||
| 5 | 螺母 | PTFE(F4) | CF8 | CF8 | |||
![]() |
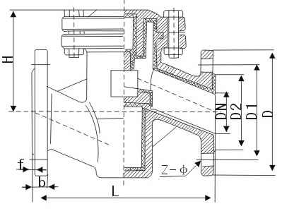
H41F46襯(chèn)氟止回閥(fá)外形尺寸圖 |
| 公稱通通徑 | L | D | D1 | D2 | f | b | Z-φd | ||||
| DN(mm) | PN1.6MPa | ||||||||||
| 15 | 130 | 130 | 95 | 65 | 2 | 14 | 4-φ14 | ||||
| 20 | 150 | 150 | 105 | 75 | 2 | 16 | 4-φ14 | ||||
| 25 | 160 | 160 | 115 | 85 | 2 | 16 | 4-φ14 | ||||
| 32 | 180 | 180 | 135 | 100 | 2 | 18 | 4-φ18 | ||||
| 40 | 200 | 200 | 145 | 110 | 3 | 18 | 4-φ18 | ||||
| 50 | 230 | 230 | 160 | 125 | 3 | 20 | 4-φ18 | ||||
| 65 | 290 | 290 | 180 | 145 | 3 | 20 | 4-φ18 | ||||
| 80 | 310 | 310 | 195 | 160 | 3 | 22 | 4-φ18 | ||||
| 100 | 350 | 350 | 215 | 180 | 3 | 24 | 8-φ18 | ||||
| 125 | 400 | 400 | 245 | 210 | 3 | 26 | 8-φ18 | ||||
| 150 | 480 | 480 | 280 | 240 | 3 | 28 | 8-φ23 | ||||
| 200 | 600 | 495 | 335 | 295 | 3 | 30 | 12-φ23 | ||||
注:表中尺寸爲不帶标準附件數據。另由於(yú)産品改進技術創新參數可能有一定變(biàn)化,請咨詢公司技術部門索取新數據。
|
|