
一、氣動固定球閥 産品概述
本公司生産的川滬牌Q647氣動固定球閥,由活塞式氣動執行機構和固定球閥組成。氣動固定球閥因爲球閥的閥芯是固定的,所以可以大大減輕氣缸的負載,适用於(yú)高壓差場合和DN150的口徑以上的大口徑球閥。氣動固定球閥大多用於(yú)兩位切斷,一般不用做調節,配上限位開關、電磁閥、三聯件及0.4-0.7MPa氣源可實現開關操作,並(bìng)送出二對無源觸點信号指示閥門的開關。氣動固定球閥具有結構簡單,啓閉快速、阻力小、動作穩定可靠等優點。氣動固定球閥廣泛應用於(yú)石油、化工、電力、冶金、鋼鐵、造紙、醫藥、食品、紡織、輕工等行業。 |
|
Q647氣動固定球閥 |
二、氣動固定球閥 産品特點
1、防火安全結構:閥門都具備防火安全功能,其設計、制造均遵循API 607和API 6FA 規範要求。
2、雙阻塞與排放功能:氣動固定球閥採用彈簧預緊浮動閥座,無論閥門處於全開或全關狀态時,上下遊側的閥座使流體阻斷,閥體中腔滞留物通過排放閥排洩。
3、自動洩壓功能:閥門體腔停留介質溫度升高而引起異常升壓時,不需通過安全閥,而僅靠閥座功能就可自動洩壓,這對保證閥門在輸送液體介質時的安全性非常重要。
三、氣動固定球閥 主要技術參數
1、閥體
| 閥體形式 |
直通鑄造球型閥 |
| 公稱通徑 |
DN25~400mm |
| 公稱壓力 |
國标PN1.6、2.5、4.0、6.4 MPa;美标ANSI 150、300LB ;日标JIS 10、20、30K |
| 法蘭标準 |
JIS、ANSI、GB、JB、HG等 |
| 連接形式 |
法蘭式、焊接式 |
| 閥蓋形式 |
整體式 (适用溫度-45~+400℃) |
| 壓蓋型式 |
螺栓壓緊式 |
| 密封填料 |
V型聚四氟乙烯填料、含浸聚四氟乙烯填料、石棉編織填料、柔性石墨 |
| 閥芯形式 |
O型球閥芯 |
| 流量特性 |
直線特性 |
2、執行器
| 執行器型号 |
GT、SR、ST、AT、AW系列單雙作用氣動執行器 |
| 供氣壓力 |
0.4~0.7MPa |
| 氣源接口 |
G1/4"、G1/8"、G3/8"、G1/2" |
| 環境溫度 |
-20~+90℃ |
| 作用形式 |
單作用執行機構:氣關式(B)--失氣時閥位開(FO);氣開式(K)--失氣時閥位關(FC) 雙作用執行機構:氣關式(B)--失氣時閥位保持(FL);氣開式(K)-- 失氣時閥位保持(FL) |
| 可配附件 |
定位器、電磁閥、空氣過濾減壓器、保位閥、行程開關、閥位傳送器、手輪機構等 |
四、氣動固定球閥 主要性能指标
| 公稱通徑 DN(mm) |
25 |
32 |
40 |
50 |
65 |
80 |
100 |
125 |
150 |
200 |
250 |
300 |
| 額定流量系數KV |
32 |
46 |
78 |
90 |
160 |
250 |
360 |
610 |
1120 |
1850 |
2950 |
3700 |
| 允許壓差(MPa) |
≤ 公稱壓力 |
| 動作範圍 |
0~90° |
| 洩露量Q |
軟密封VI級、硬密封IV級、符合ANSI B16.104标準 |
| 基本誤差 |
帶定位器:小於全行程的±2% |
| 回差 |
帶定位器:小於全行程的2% |
五、氣動固定球閥 主要性能規範
| 試驗壓力(MPa) |
公稱壓力(MPa) |
壓力級(class) |
JIS(K) |
| 1.6 |
2.5 |
4.0 |
6.4 |
10.0 |
150 |
300 |
600 |
10K |
20K |
| 強度試驗 |
2.4 |
3.75 |
6.0 |
9.6 |
15.0 |
3.0 |
7.5 |
16.5 |
2.4 |
3.8 |
| 密封試驗 |
1.76 |
2.75 |
4.4 |
7.04 |
11.0 |
2.2 |
5.5 |
12.1 |
1.5 |
2.8 |
| 氣密試驗 |
0.4~0.7MPa |
六、氣動固定球閥 主要零件材料
| 1、2 |
底座、閥體 |
WCB、CF8、CF8M、CF3M |
|
| 3 |
下軸套 |
銅/不鏽鋼 |
| 4 |
壓圈 |
2Cr13、304、316、316L |
| 5 |
閥座 |
PTFE、PPL、不鏽鋼 |
| 6 |
V型球體 |
WCB、CF8、CF8M、CF3M (硬化處理) |
| 7 |
上閥軸 |
銅/不鏽鋼 |
| 8 |
閥杆 |
2Cr13、304、316、316L |
| 9 |
填料 |
V型聚四氟乙烯填料、石墨填料 |
| 10 |
填料壓套 |
2Cr13、304、316、316L |
| 11 |
壓闆 |
WCB、CF8、CF8M、CF3M |
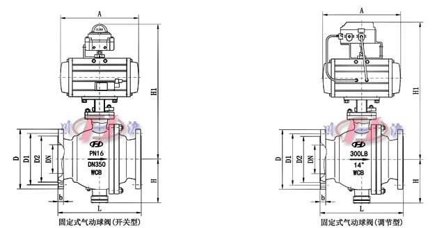
六、氣動固定球閥 外形尺寸圖
六、氣動固定球閥 連接尺寸
| 公稱通徑 DN(mm) |
50 |
65 |
80 |
100 |
125 |
150 |
200 |
250 |
300 |
350 |
400 |
500 |
600 |
700 |
| L |
130 |
140 |
150 |
165 |
180 |
200 |
220 |
250 |
280 |
320 |
360 |
400 |
630 |
750 |
| H |
- |
- |
- |
- |
- |
- |
335 |
385 |
430 |
470 |
590 |
700 |
780 |
950 |
| H1 |
根據所配執行機構而定,配置執行器不同,連接尺寸也不同 |
| A |
| D |
165 |
185 |
200 |
220 |
250 |
285 |
340 |
405 |
460 |
520 |
580 |
705 |
840 |
910 |
| D1 |
125 |
145 |
160 |
180 |
210 |
240 |
295 |
355 |
410 |
470 |
525 |
650 |
770 |
840 |
| D2 |
99 |
118 |
132 |
156 |
184 |
211 |
266 |
319 |
370 |
435 |
485 |
608 |
718 |
788 |
| n-φd |
4-18 |
4-18 |
8-18 |
8-18 |
8-18 |
8-22 |
12-22 |
12-26 |
12-26 |
12-26 |
12-30 |
12-34 |
12-41 |
12-41 |
由於(yú)産品改進技術創新參數可能有一定變(biàn)化,請咨詢公司技術部門索取新數據。